绍兴滨海幼儿园

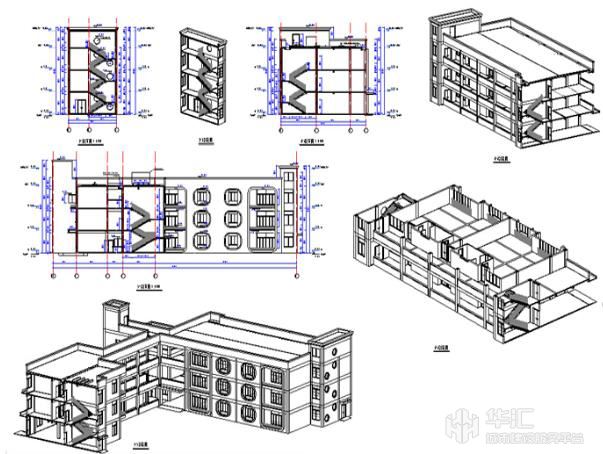
项目占地面积为1625.04㎡,建筑总面积为4608.9㎡,为BIM全专业出图的公建项目。

通过对本项目的设计要求、设计重难点的分析,制定了运用BIM技术实现各专业施工出图的应用目标。对如何应用BIM软件进行二维出图做了深入研究与实践。相较于传统二维项目,BIM出图减少了设计错误,减少了在施工阶段可能存在的错误损失和返工,提高了设计质量。

该项目荣获浙江省第一届BIM大赛工程协同奖。


业绩奖项

该项目荣获浙江省第一届BIM大赛工程协同奖。

项目分类:
教育建筑
项目地点:
浙江省-绍兴市
主创团队:
BIM产品研究院
客 户 :
绍兴滨海幼儿园
相关团队:
BIM设计产品研究院

相关业绩